Project Gallery
Side Extension on 5 bed detached house in Malahide
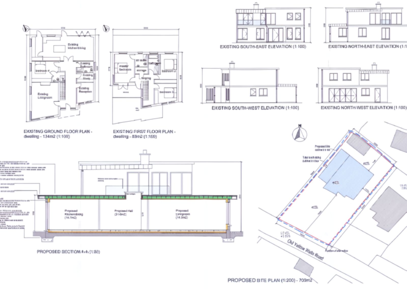
The client approached Buildtech to add more functional living space to their 5 bed detached house in Malahide. This project included a 48sqm side extension that delivered a larger kitchen living area, bathroom, utility room, and sitting room. The build was carried out on a sloping raised site, which required close coordination with the client's architect and structural engineer to get right. The result is a significantly larger, more functional family home delivered within budget and managed end to end by the Buildtech team.


